UT-81D系列油箱油位传感器

首页 / 无锡河埒传感器 / 传感器  最后编辑时间:2021-05-27


1、概述

UT-81D油箱油位传感器是利用磁至伸缩原理研制的线性液位传感器,具有简单、可靠、精度高和使用方便的优点

UT-81D油箱油位传感器主要用于测量汽轮机油箱油位,也广泛用于其它行业,其最大测量液位落差可达6米,由于该传感器的上下部均为密闭的不锈钢管体,因此可适用于各种易受油渍、溶液、尘埃污染和高压、高振荡的恶劣工作环境。

2、用途
适用于汽轮机油箱油位的监测及保护。

3、技术参数

n 线性量程:200 mm6000 mm(特殊规格可订做)。

n 传感器精度:0.5

n 电源:220VAC/5W

n 输出:DC420mA,负载电阻≤500

n 液位传感器重量:约5kg10kg

n 传感器工作温度:-10℃~80

n 执行标准:参照GB/T  21117-2007

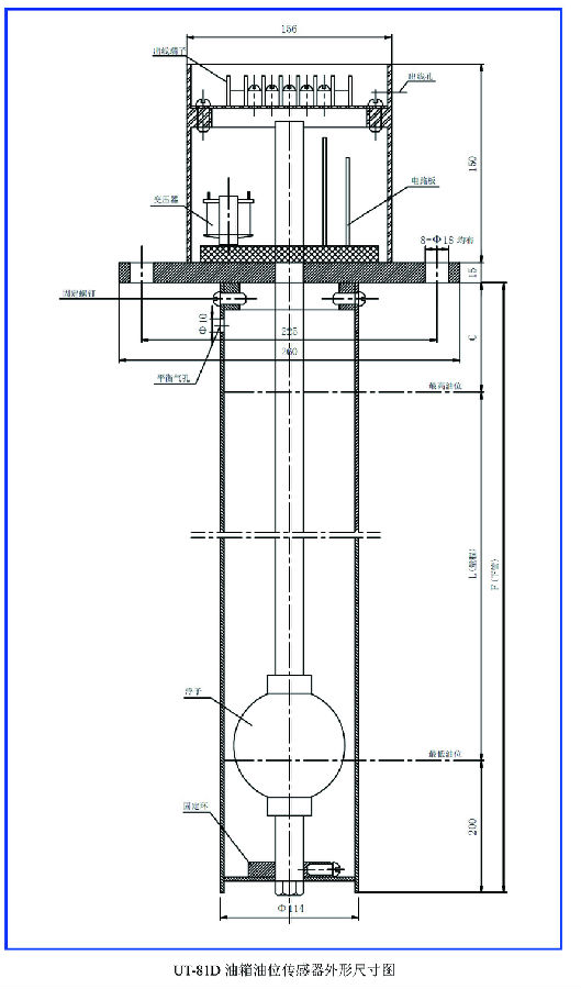
4、外形及安装尺寸

5、订货代号

订货代号: UT-81D□-□□□

行程L选择:□□□(直接填写行程,单位为mm,默认为400mm)

综合举例:订货代号为“UT-81D-400的产品是指行程400mm,最高油位为150mm、下管为750mm的UT-81D油箱油位传感器一套。

附注:行程与最高油位、下管深度对照表

产品推荐
  • 网站地图